How Can We Help?

Please fill in the form below.

Let Agreed

2 1 Apartment

Features

Attractive 1st floor apartment
New decor & new carperts
Popular west side location
Double glazed & gas central heating
Shops & buses on the doorstep
Lounge, sep Dining room + kitchen
2 big bedrooms, bathroom
On site parking, pretty gardens

Summary

To request a viewing of this property, email your enquiry by clicking on the email/contact agent button within the advert or complete the contact form on our website.

Description

Allesley Village is on the western fringe of Coventry with easy access to the A45 towards Birmingham and airport. Buses to the city and Birmingham pass the door.
This larger than average apartment has just undergone a refurb with new decor and carpets, while it is double glazed and centrally heated. Briefly it comprises: Ground level entrance with hall and stairs to the first floor, big lounge, separate dining room, fitted kitchen, 2 big bedrooms, bathroom, outside there are pretty gardens and on site parking.

Council Tax Band:B
EPC Rating: C

£895
£1032.69
£206.53
Now
Long term

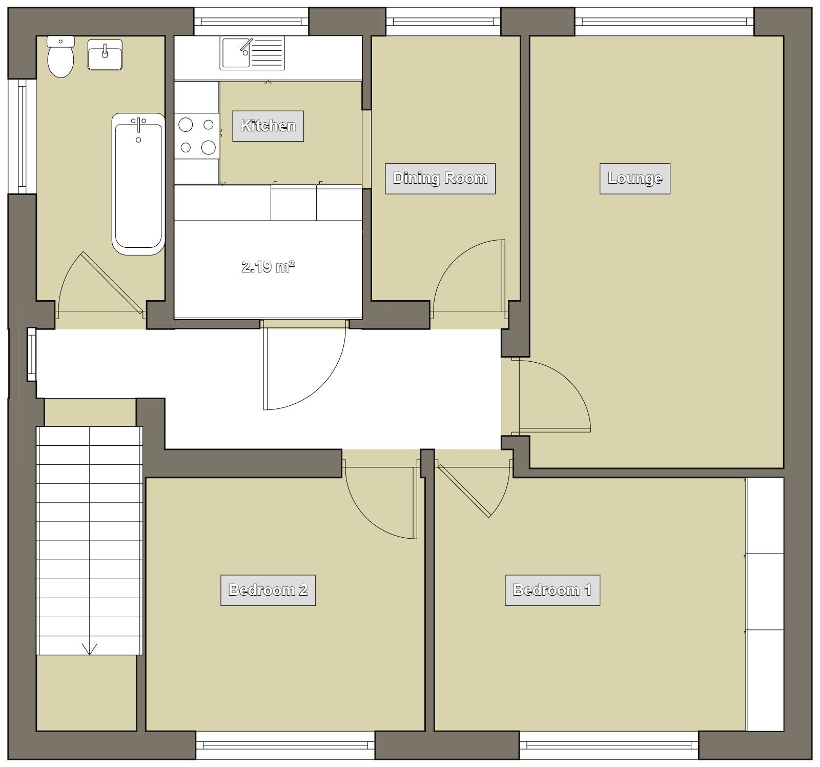
Hallway
With stairs from ground floor front door to 1st floor landing with airing cupboard and store cupboard

Lounge
5.68 m x 3.34 m (18'8" x 10'11")
With double glazed rear bow window and central heating radiator

Dining room
3.48 m x 1.96 m (11'5" x 6'5")
with double glazed window and Central heating radiator. An arch leads to:

Fitted Kitchen
2.47 m x 2.55 m (8'1" x 8'4")
With range of base and wall units, roll edge worktop, new electric cooker, fridge and freezer

Bedroom 1
4.56 m x 3.33 m (15'0" x 10'11")
Overall With range of built in wardrobes, central heating radiator and double glazed front window

Bedroom 2
2.73 m x 2.30 m (8'11" x 7'7")
With large built in over stairs cupboard, central heating radiator and double glazed window

Bathroom
With panel bath with shower and glass screen over, wash basin and low level WC. Half tiled walls with full tiling to the bath/shower area

Outside
The property is set amidst attractive lawned gardens with on site parking

Utilities, Rights, Easements & Risks

Utility Supplies
Electricity Mains Supply
Water Mains Supply
Heating Gas Central
Broadband None
Sewerage Mains Supply
Rights & Restrictions
Article 4 Area No
Listed property No
Restrictions No
Required access No
Rights of Way No
Risks
Flooded in last 5 years No
Flood defenses No
Flood sources Ask Agent

Additional Details

Bedrooms: 2 Bedrooms
Bathrooms: 1 Bathroom
Receptions: 2 Receptions
Kitchens: 1 Kitchen
Parking Spaces: 1 Parking Space
Holding Deposit: £206.53
Security Deposit: £1,032.69
Tenure: Leasehold

Additional Features

Outside Space - Communal Garden
Parking - Off Street
Has Double Glazing
Has Electricity
Has Gas
Has Water

Map

Street View

Floorplans

Mobile Coverage

Mobile coverage information is not available for this property.

How can we help? Drop us a line, we’d love to hear from you

Paul Chillingsworth Homes - Coventry 02476 258492